1430 Clay
Property Data
|
Address: |
1430 Clay Street, San Francisco, CA 94109 |
|
District: |
Nob Hill |
|
Property
Type: |
Multifamily |
|
APN: |
0216-008 |
|
Building
Area: |
10,254 square feet (per tax records) |
|
Units: |
12 |
|
Lot Size: |
4,120 square feet (per tax records) |
|
Constructed: |
1922 |
|
Zoning: |
RM-3 |
Building Data
|
Foundation: |
Concrete, with new below grade underpinning |
|
Structure: |
Wood-frame |
|
Façade: |
Stucco façade |
|
Roof
Composition: |
Tar & Gravel (20 years) |
|
Windows: |
Vinyl double paned windows (80%) |
|
Electrical
Service: |
Separately metered (200 amps service) |
|
Gas
Service: |
Separately metered |
|
Fire
Protection System: |
Fire alarm, hardwired smoke detectors, fire horns |
|
Fire
Escapes: |
In front and back of building |
|
Heat
Source: |
Electric baseboard heat |
|
Hot Water: |
12 individual storage tanks (40 gal each) |
|
Door Entry
System: |
Lock & key, Swiftreader X intercom system |
|
Mailboxes: |
In lobby area |
|
Lobby/Common
Areas: |
Vinyl hardwood |
|
Laundry: |
2 coin operated washer & dryer (CSC Service Works) |
|
Storage: |
1 storage space, lobby level |
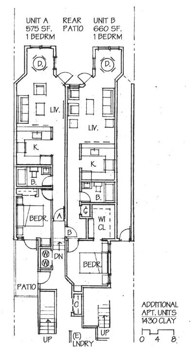
Apartment Data
|
Unit Mix: |
Twelve (12) one bedroom, 1 bath |
|
Parking: |
Two (2) car parking, One (1) motorcycle parking |
Notes
|
Soft story completed |
|
Underground storage tank removed |
|
Foundation upgrade completed |
|
Fire horn completed, final test pending |
|
Tenants pay for electricity |